FYUHZ磁翻板液位計身為一款應用管飯的液位測量儀表,其主要應用在食物、化工、醫藥等等行業中。可是由于室外罐領會由于冬天氣溫的下降致使部分罐體內的液體結冰,由于FYUHZ磁翻板液位計靠的是連通器的原理,一旦被檢查的罐體內的液體結冰,致使液體無法活動,那么FYUHZ磁翻板液位計的液位丈量將無法進行,因而咱們需求對磁翻板液位計的管道進行保溫操作,一般咱們常常運用的辦法分為兩種,一種是電加熱和熱保溫,真空夾套保溫則是另一種,電伴熱/電加熱是經過纏繞在磁翻板液位計主管道上的電阻絲對管道進行加熱使管道內的液體處在冰點以上,確保罐體內的液體不會由于溫度過低而結冰,此保溫原理與保溫壺一樣,因而能夠在室外夜間溫度下降的時分起到一定的保溫效果,保溫的意圖也就是為了防止被檢查罐體內的溫度過低,這樣就可以讓液體變為固體。為了保障真空夾套的真空狀況,咱們需求為真空夾套定時檢查真空狀況,當此磁翻板液位計運行一段時間后,真空值上升就代表真空夾套需求重新抽取真空了,真空泵安裝在真空夾套閥門處,運用真空泵對真空夾套抽真空,確保真空夾套的密封度。保證此液體不會因為溫度過低而上凍。然后確保液位監控的準確性。新鄉市恒冠儀表有限公司來解說對磁翻板液位計的保溫方法和辦法都有所解了。
磁翻板液位計由本體、磁性小翻版、浮子、法蘭蓋等構成,大多數容器內液體都可進行測量。磁翻板液位計能用于高溫、防爆、防腐、食物飲料等場合液位就地顯現或遠傳顯現與操控。FY系列磁翻板液位計能夠做到高密封、防走漏和在高溫、高壓、高粘度、強腐蝕性條件下安全可靠地丈量液位,測量全稱沒盲區、顯現耀眼、讀數簡單、范圍廣、配上液位報警、操控開關,來完成上下限報警和操控,配上液位變送器可將液位測量。此時信號轉換成二線制4~20mADC的輸出信號,遠距離檢查、指示、記載與操控等得以完成。磁翻板液位計能用于高溫、防爆、防腐、食物飲料等場合、作液位的就地顯現或遠傳顯現與操控。FY系列磁翻板液位計能夠做到高密封、防走漏和在高溫、高壓、高粘度、強腐蝕性條件下安全可靠地測量液位。

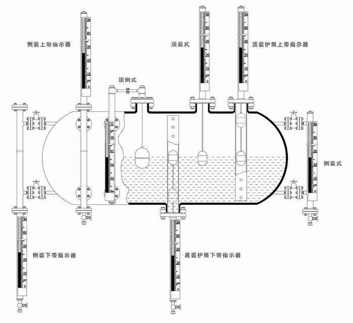
1、磁翻板液位計構造
液位計依據浮力原理,浮子隨著液位計的變化而變化,磁翻板液位計的浮子內持久磁鋼經過磁耦合效果,紅白雙色180度翻轉液位升的時候,翻柱白變紅,落的時候翻柱紅變白,從而完成液位計實際顯示。
2、上下限開關輸出使用磁性浮子隨液位移動,使安裝在液位計立管設定方位上的簧片開關動作,完成開-關操控或報警。
3、液位計電遠傳在磁翻板液位計上安裝變送器。轉換器和傳感器兩部分組成的變送器,從磁浮子經過時會上下移動,經磁耦合效果使導管內丈量元件順次動作,取得電阻信號變化,轉換成0~十或4~20mA的規范電流信號輸出,這樣方便和數字顯示也或者與計算機的鏈接。完成遠傳顯現及操控。
來源于:http://www.bbbmy888.cn/product/18_35

全國統一服務熱線
1551658502615516585026
掃一掃 關注我們